Location | Borstahusen, Landskrona, Sweden |
Date | 2010–2013 |
Information | The city of Landskrona has identified four different areas around the city as especially important for the future development of the city. Borstahusen, a 17:th century fishing village, located in the north of Landskrona, was given top priority on a political level as a way of diversifying the social structure of the city as a whole and attract new residents. The site was a formerly used for camping and golf, but due to the proximity to Borstahusen and good connectivity to the surrounding infrastructure, it was decided that the area was better used for other purposes and that the camping and golf could be relocated to a different area. The design proposal aims at creating natural extension of the adjacent fishing village and adapts itself in scale and volume to the local building tradition. The street structure, and the typical fishing village block pattern, is extended towards the north. The blocks are subdivided into small building plots which are based on the size which can be found in the old part of Borstahusen. Sitelines and views are taken into account as each row of houses is taller than the one in front to be able to guarantee that all new buildings have a view of Öresund at its surrounding. The area is currently being under construction. |
Type | Urban design proposal |
Client | Tengbom Helsingborg. Landskrona Stad. more information at: |
Project team | Martin Martinsson Architecture |
|
|
|


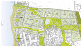
Borstahusen in 2010 with a camping ground and a golf course next to Öresund. The new urban design proposal to the right.






Old Borstahusen
Photo from the old fishing village. A public green area seperates the fishing village from the ocean. Low rise single family dwellings with entrances directly from the street. Private gardens and backyards directly behind the first row of houses. A public street directly in front of the houses with mixed traffic for pedestrians, bicycles and cars.

Old Borstahusen.
Ocean/ beach/ green area/ street/ sidewalk with entrances and seating for the residents. Mainly single family dwellings with entances directly from the street and private gardens in the back. The pavement between the street and the house creates a distinction between the public and private space.

The new Borstahusen has the exact same structure. A public green in front of the first block and a public mixed street with mixed traffic and entrances to the single family residential units directly from the street.

New Borstahusen.
View of the public green area next to Öresund with the New Borstahusen residential area to the left.

New Borstahusen
A public promenade connect the old village with the newly built area.
A public green space in front of the first block of houses.

New Borstahusen
A public promenade connect the old village with the newly built area.
A public green space in front of the first block of houses.

New Borstahusen.
Ocean/ beach/ green area/ street/ sidewalk with entrances and seating for the residents. Mainly single family dwellings. A public street in front of the houses.

New Borstahusen.
A public street with adjacent buildings. Entrances to the houses directly from the street. Benches for the residents to get a place to rest and look at by passers.


Old Borstahusen.
Entrances to the private gardens through the alleys. Sometimes the alleys are used for services like garbage collection and parking. The narrow alleys break the strong wind coming from the west.

Old Borstahusen.
The old alley works has several different functions and are used for side entrances, garbage disposal, mailboxes and access to the private gardens in the back. Quick access to the Öresund strait.

New Borstahusen.
Alley with entrances to the houses. Provides access to the ocean for the houses further up in the structure. Inspired by the structure found in the old fishing village.

New Borstahusen.
Alley with a view of the ocean. Private gardens directly behind the first row of houses creates protection from the wind and provides a pleasant microclimate.

New Borstahusen.
Alley provides access between the street and the gardens and greenspaces in the back.

New Borstahusen.
The alleys can also be used for bicycle parking.

New Borstahusen.
Alleys connects the backyards and the parks with the street.

Private gardens directly behind the first row of residential buildings. A public alley provides access to the beach. A strict distinction between public, semiprivate and private space.

New Borstahusen.
Alley with entrances to the private gardens. A strict distinction between public and private space.

New Borstahusen.
The alleys are not aligned to provide shelter from the wind. Houses in different shapes break the wind from the west.

Old Borstahusen.
Corner building of the old fishing village. Private garden in the back of the house on the left and a small green space in front of the house on the left.

Old Borstahusen.
Alley with some some small greenspaces. The alleys provide access between the park in the back and the beach in front of the first block.

New Borstahusen.
The park in the middle as a modern reinterpretation of the old fishing village. Single family residential units with entrances directly from the street.

New Borstahusen.
A small garden between the house and the street. Always some small greenspace in sight. A modern reinterpretation of the structure in the old fishingvillage.

New Borstahusen.
The park in the middle as a modern reinterpretation of the old fishing village. Single family residential units with entrances directly from the street. Alleys between the houses with access to the ocean.

New Borstahusen.
A small park/ open space for the local residents. A place to meet and play. Always a small green space in sight. Strict division between public and private space.


New Borstahusen.
View from the street facing the ocean. Low rise single family houses in the first row provides shelter from the wind.

New Borstahusen.
View of the new street in the middle. The streets functions as a shared space for cars, bicycles and pedestrians alike,

New Borstahusen.
Cornerbuilding at the block facing the ocean and the old fishing village. A strict division between private and public space.

New Borstahusen.
Private gardens in the back provides shelter from the wind. The first row of houses is lower than the ones in the back to provide views from the houses and terraces in the back.

New Borstahusen.
Rowhouses with entrances directly from the street. Each house has the possibility to place furniture in front of the houses. Parking garages in the bottom floor.

New Borstahusen.
Small public space between the buildings provides a natural meeting point for the local residents. Local residents can put flowerpots and temporary visitors can park their bicycles.

New Borstahusen.
Streetcorner with a view of the ocean.

New Borstahusen.
Row houses with entrances from the street. Access to the gardens through the alleys.

New Borstahusen.
The new mainstreet is wider and has a view of Öresund.

New Borstahusen.
The new mainstreet with a view of Öresund and the island of Ven in the background.

New Borstahusen.
The new main road has seperated lanes for cars, pedestrians and bicycles.

New Borstahusen.
The new main road with a view of Öresund. A mixture of building typologies along the street.

New Borstahusen.
Taller residential buildings in the back. Mixed types of residential units in the same street. The low rise houses in the front provides views of the ocean even for the taller buildings in the back.

New Borstahusen.
Erikstorps allé. Entrances directly to the houses with a small space in front of the houses were the residents can sit and look at by-passers.
Location | Borstahusen, Landskrona, Sweden |
Date | 2010–2013 |
Information | The design proposal aims at creating natural extension of the adjacent fishing village and adapts itself in scale and volume to the local building tradition. The street structure, and the typical fishing village block pattern, is extended towards the north. The blocks are subdivided into small building plots which are based on the size which can be found in the old part of Borstahusen. Sitelines and views are taken into account as each row of houses is taller than the one in front to be able to guarantee that all new buildings have a view of Öresund at its surrounding. The area is currently being under construction. |
Type | Urban design proposal |
Client | Tengbom Helsingborg. Landskrona Stad. more information at: |
Project team | Martin Martinsson Architecture |
|
|
|

Borstahusen in 2010 with a camping ground and a golf course next to Öresund. The new urban design proposal to the right.






Old Borstahusen
Photo from the old fishing village. A public green area seperates the fishing village from the ocean. Low rise single family dwellings with entrances directly from the street. Private gardens and backyards directly behind the first row of houses. A public street directly in front of the houses with mixed traffic for pedestrians, bicycles and cars.

New Borstahusen.
Ocean/ beach/ green area/ street/ sidewalk with entrances and seating for the residents. Mainly single family dwellings. A public street in front of the houses.

New Borstahusen.
A public street with adjacent buildings. Entrances to the houses directly from the street. Benches for the residents to get a place to rest and look at by passers.

New Borstahusen
A public promenade connect the old village with the newly built area.
A public green space in front of the first block of houses.

The new Borstahusen has the exact same structure. A public green in front of the first block and a public mixed street with mixed traffic and entrances to the single family residential units directly from the street.

New Borstahusen.
View of the public green area next to Öresund with the New Borstahusen residential area to the left.

New Borstahusen
A public promenade connect the old village with the newly built area.
A public green space in front of the first block of houses.


Old Borstahusen.
The old alley works has several different functions and are used for side entrances, garbage disposal, mailboxes and access to the private gardens in the back. Quick access to the Öresund strait.

New Borstahusen.
Alley with a view of the ocean. Private gardens directly behind the first row of houses creates protection from the wind and provides a pleasant microclimate.

New Borstahusen.
Alley with entrances to the houses. Provides access to the ocean for the houses further up in the structure. Inspired by the structure found in the old fishing village.

New Borstahusen.
Alley provides access between the street and the gardens and greenspaces in the back.

New Borstahusen.
The alleys can also be used for bicycle parking.

New Borstahusen.
Alleys connects the backyards and the parks with the street.

Private gardens directly behind the first row of residential buildings. A public alley provides access to the beach. A strict distinction between public, semiprivate and private space.

New Borstahusen.
Alley with entrances to the private gardens. A strict distinction between public and private space.

New Borstahusen.
The alleys are not aligned to provide shelter from the wind. Houses in different shapes break the wind from the west.

Old Borstahusen.
Alley with some some small greenspaces. The alleys provide access between the park in the back and the beach in front of the first block.

New Borstahusen.
The park in the middle as a modern reinterpretation of the old fishing village. Single family residential units with entrances directly from the street.

New Borstahusen.
A small garden between the house and the street. Always some small greenspace in sight. A modern reinterpretation of the structure in the old fishingvillage.

New Borstahusen.
The park in the middle as a modern reinterpretation of the old fishing village. Single family residential units with entrances directly from the street. Alleys between the houses with access to the ocean.

New Borstahusen.
A small park/ open space for the local residents. A place to meet and play. Always a small green space in sight. Strict division between public and private space.


New Borstahusen.
View from the street facing the ocean. Low rise single family houses in the first row provides shelter from the wind.

New Borstahusen.
View of the new street in the middle. The streets functions as a shared space for cars, bicycles and pedestrians alike,

New Borstahusen.
Cornerbuilding at the block facing the ocean and the old fishing village. A strict division between private and public space.

New Borstahusen.
Private gardens in the back provides shelter from the wind. The first row of houses is lower than the ones in the back to provide views from the houses and terraces in the back.

New Borstahusen.
Rowhouses with entrances directly from the street. Each house has the possibility to place furniture in front of the houses. Parking garages in the bottom floor.

New Borstahusen.
Small public space between the buildings provides a natural meeting point for the local residents. Local residents can put flowerpots and temporary visitors can park their bicycles.

New Borstahusen.
Streetcorner with a view of the ocean.

New Borstahusen.
Row houses with entrances from the street. Access to the gardens through the alleys.

New Borstahusen.
The new mainstreet is wider and has a view of Öresund.

New Borstahusen.
The new mainstreet with a view of Öresund and the island of Ven in the background.

New Borstahusen.
The new main road has seperated lanes for cars, pedestrians and bicycles.

New Borstahusen.
The new main road with a view of Öresund. A mixture of building typologies along the street.

New Borstahusen.
Taller residential buildings in the back. Mixed types of residential units in the same street. The low rise houses in the front provides views of the ocean even for the taller buildings in the back.

New Borstahusen.
Erikstorps allé. Entrances directly to the houses with a small space in front of the houses were the residents can sit and look at by-passers.
We use cookies to improve your experience on our site. By using our site, you consent to cookies.
Manage your cookie preferences below:
Essential cookies enable basic functions and are necessary for the proper function of the website.
These cookies are needed for adding comments on this website.
Statistics cookies collect information anonymously. This information helps us understand how visitors use our website.
Google Analytics is a powerful tool that tracks and analyzes website traffic for informed marketing decisions.
Service URL: policies.google.com (opens in a new window)