Location | Hyllinge, Åstorps Kommun, Sweden |
Date | 2025 |
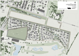
Information | Remake of a project from 2019. After the local authorities decided not to move the adjacent powerlines, a second study was made to investigate the possibilities of developing the site next to the local golf course. |
Type | Urban design. Masterplan study. |
Client | Private |
Project team | Martin Martinsson Architecture. |
|
|
|









We use cookies to improve your experience on our site. By using our site, you consent to cookies.
Manage your cookie preferences below:
Essential cookies enable basic functions and are necessary for the proper function of the website.
These cookies are needed for adding comments on this website.
Statistics cookies collect information anonymously. This information helps us understand how visitors use our website.
Google Analytics is a powerful tool that tracks and analyzes website traffic for informed marketing decisions.
Service URL: policies.google.com (opens in a new window)