Location | Weibullsholm, Landskrona, Sweden |
Date | 2015–2016 |
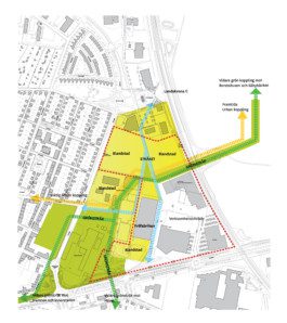
Information | Weibullsholm in Landskrona is located nearby the new trainstation and used to be an industrial area. The area is now slowly being transformed and redeveloped for new purposes. The area is divided into two parts, with the more southern one being developed a pure commersial area. In the north, closer to the trainstation, the design proposal aims at creating a diverse multifunctional cityscape with a mixture of different residential building typologies and with a mixture of workplaces and offices, to create an urban link between the inner city and the trainstation. |
Type | Urban design proposal. Infrastructure. |
Client | Tengbom Arkitekter Helsingborg. Landskrona Stad. |
Project team | Martin Martinsson Architecture. |
|
|
|

Conceptual analysis.

Diagrams of the conceptual development,

Diagrams of the conceptual development of the height of the buildings.

Street sections.



Plan infrastructure phase 1

Plan infrastructure phase 2.

Plan residential area final phase.

Plan commersial area final phase.

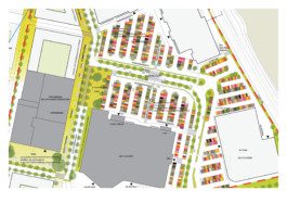
Volumetric study of the new mixed use residential area. Variation of building typologies to create a variation in height aswell as a mixed social structure.

Volumetric study of the new public space connecting the trainstation with the area further south. A park in the middle with a pond used for collection and infiltration of surface water.

Volumetric study of the new street between the old factory and the commersial area in the south.
We use cookies to improve your experience on our site. By using our site, you consent to cookies.
Manage your cookie preferences below:
Essential cookies enable basic functions and are necessary for the proper function of the website.
These cookies are needed for adding comments on this website.
Statistics cookies collect information anonymously. This information helps us understand how visitors use our website.
Google Analytics is a powerful tool that tracks and analyzes website traffic for informed marketing decisions.
Service URL: policies.google.com (opens in a new window)